このページを閉じる  
 

別荘地メイン通り沿い平坦地200坪。北欧ティスト2LDK物件。
開放感のある吹抜に最新の薪ストーブもされたフルリフォーム済み物件です。

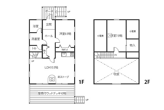
自然が豊かなバケーションランドメイン通り沿い、南側に敷地が広がる土地200坪に、ライトブルーの外壁が美しい北欧ティストの2LDKの物件です。建物は大きな吹抜のLDKと2カ所の居室のレイアウトで高い基礎を利用した地下収納もご利用いただけます。南側の敷地はドッグランやガーデニング等もお楽しみいただけます。2025年11月の全面改修は、屋根外壁・デッキ補修再塗装・ポリカ屋根再設置、室内天井壁クロス交換、シーリングファンライト等照明交換・新設、各居室にエアコン、24時間換気導入、洗浄トイレと各水栓交換をしており、さらにLDKには人気の薪ストーブ「ヨツールF400」も導入いたしました。 別荘利用からご定住、さらに貸別荘システムもご利用いただけるおすすめの物件となっております。 《仲介手数料不要》

 
株式会社ビー・ワークス 那須営業所
宅地建物取引業・東京都知事(4)第89034号 (公社)東京都宅地建物取引業協会会員 
〒325-0302 栃木県那須郡那須町高久丙1147-631 Phone.0287-76-3266

  物件番号 3162

 

価格1,580万円(税込)

■別荘地/バケーションランド
■所在地/栃木県那須郡那須町大字高久丙
■土地面積/660㎡(約200坪)
■建物面積/74.63㎡(約22.57坪)
■間取り/2LDK
■築年月/1996年11月、2025年11月全面改修済

●交通/東北新幹線「那須塩原駅」より車で約40分(約26km)、または東北自動車道「那須I.C」より車で約23分(約15km)
●用途地域/都市計画区域内(無指定)
●建ぺい率/60%
●容積率/200%
●構造/木造・2階建て
●土地の権利/所有権
●私道負担/約107㎡
●駐車場/カーポート1台
●道路付け/北・幅員9.6m、東・幅員4.7m
●設備/東京電力、私営水道、個別プロパンガス、個別浄化槽
●諸費用/管理・(株)那須別荘警備保障(通勤) /管理費・別荘利用は年額187,000円(税込)、定住は71,500円(税込)/水道名義変更料100,000円(引き渡し時一括払い、定住者は除く)水道使用料・月額3,000円(税別)
●温泉(任意)/引き込み可(権利金2,090,000円(税別)・契約有効期間10年間・更新可)温泉使用料・年額58,800円(税込)
●取引態様/売主

 
お問い合せへ